DVP Huisvesting & Inrichting
Prinses Alexialaan 6
2496 XA Den Haag
T +31 88 0106800
E info@dvp-hint.nl

Pensmarkt ’s Hertogenbosch

Trots op het eindresultaat van deze renovatie van een monumentaal pand in het centrum van ’s Hertogenbosch, waarin integraliteit, duurzaamheid en toekomstbestendigheid samenkomen.

We zijn dit project gestart met een integrale benadering, waarbij we vanaf het initiatief zowel de harde kant (kosten, planning, wet- en regelgeving) als de zachte kant (wooncomfort, welzijn en duurzaamheid) hebben samengebracht.

In een gezamenlijke sessie met opdrachtgever en uitvoerende partij zijn de uitgangspunten helder gemaakt. Dat was noodzakelijk, want het betrof een uitdagende opgave gezien de architectonische kenmerken van dit monumentale pand in het centrum van ’s Hertogenbosch.

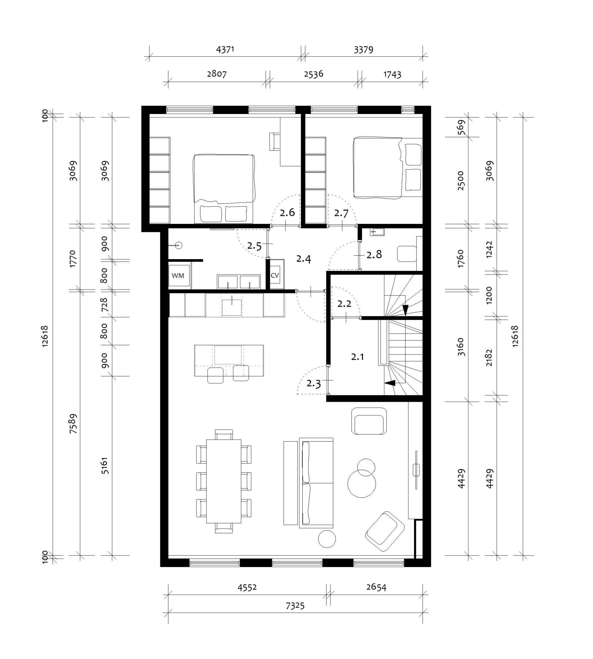
Door ons grondig te verdiepen in de wensen van de opdrachtgever, de geldende richtlijnen, de locatie en het type huurder, hebben we toegewerkt naar een passend en haalbaar ontwerp. Als eerste stap voerden we een indelingsstudie uit, die leidde tot een geoptimaliseerde plattegrond en efficiënt gebruik van de beschikbare vierkante meters. Op basis daarvan ontwikkelden we het interieurontwerp, vertaald naar concrete producten en materialen.

Doordat wij zowel als interieurarchitect én projectmanager een regierol vervullen, ontstaat al in de voorbereidingsfase meer integraliteit. We overzien wat nodig is aan de ontwerpzijde en begrijpen direct de impact daarvan op de uitvoering. Deze aanpak resulteerde in een efficiënter proces, hogere kwaliteit én duidelijke kostenbeheersing.

 

  • Opdrachtgever

    Sistra B.V.

  • Uitvoerende partij

    JP van Eesteren

  • Diensten

    Indelingsstudie | Interieurontwerp